download brochure

Key Features

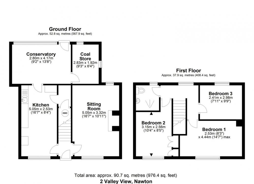
A traditional mid terrace home in this sought after location with accommodation on two floors comprising entrance lobby, sitting room with multi burning stove, good sized dining kitchen with walk-in pantry and conservatory on the ground floor with landing, three bedrooms and wet room on the first floor.
Externally there is a hardstanding area to the front with additional good sized rear garden enjoying views over open fields beyond.
The property is in need of some modernisation but has been re roofed using the existing tiles in 2025 and offers the potential to provide a comfortable family home.
The village of Nawton provides schooling at junior and senior levels and also has a local sports field/play area and public house and takeaway/restaurant. The towns of Helmsley and Kirkbymoorside are within a short distance and offer a wider range of facilities.

Accommodation Comprises:

Entrance Lobby

Staircase to first floor. Doors off leading to sitting room and kitchen.

Sitting Room

With multi-fuel stove, double glazed windows to the front and rear elevations.

Dining Kitchen

With floor and wall units comprising one and a half bowl sink unit, work surfaces, tiled splash-backs; plumbing for dishwasher and washing machine, tiled flooring. Walk-in Pantry. Double glazed window to the front elevation. Door to Conservatory.

Conservatory

Door to leading to outside and coalhouse 9'3" x 6'4"

First Floor

Landing

Double glazed window to rear elevation and central heating radiator.

Bedroom One

Double glazed window to the front elevation and central heating radiator.

Bedroom Two

With built in wardrobes, double glazed window to the front elevation and central heating radiator.

Bedroom Three

Double glazed window to the rear elevation and central heating radiator.

Wetroom

With shower unit, non slip flooring, pedestal wash hand basin, low flush w.c., double glazed window.

Outside

To the front of the property there is a hard standing area; the rear garden comprises lawn with borders containg flowering plants, bushes and shurbs and borders open fields beyond.

Services

Mains electricity, water and drainage are connected.

Loading... Please wait.

Loading... Please wait.

EPC
Mortgage Calculator

Use our mortgage calculator to estimate your monthly payments.


Find Out More
Stamp Duty Calculator

Use the calculator to estimate your SDLT costs.


Find Out More
SDLT Calculator

Further information on your estimated SDLT costs.


Find Out More